中日建筑结构技术交流会自1993年创建至今,已有二十余载,为促进双方技术交流和增进友谊做出了很大贡献。随着国内建筑行业的转型升级,装配式建筑、减隔震技术、绿色建筑、城市更新、改造加固等已然成为当代的关键词。2022年11月28日下午,海南省设计研究院有限公司应邀参加了中日建筑结构技术专题研讨会,针对超高层建筑隔震与减震技术、城市更新等议题进行交流。会议采用ZOOM视频在线方式进行,在公司党委副书记、执行董事任学斌的带领下,建筑和结构专业骨干们在公司四楼会议室分会场积极参与了学习交流。

图1 会场照片一

图2 会场照片二
会议中多名中日知名专家进行了报告和工程案例分享,其中不乏前沿技术创新成果,让人备受启迪、受益匪浅。
中方1:由中国建筑西南设计研究院有限公司总工程师吴小宾分享了《川投西昌医院工程设计案例》,为高烈度设防区、近断层、体型复杂的重要建筑结构的设计提供了一种新思路。其采用隔震和减震技术相结合,隔震层设置在基础顶,采用了普通隔震橡胶支座、铅芯隔震橡胶支座和弹性滑板支座,橡胶支座直径达到1100~1400毫米,并创新性的在隔震层设置黏滞阻尼器,可有效减小隔震层位移并减小隔震支座截面,优化隔震效果。并针对在塔楼和裙楼间是否设置抗震缝进行了对比分析,经对比分析,不分缝方案明显更有利于结构抗倾覆和控制隔震支座的拉应力,但不分缝结构变为偏心体型收进,据介绍偏心率未超过3%,由于会议时长限制,未针对如何控制结构综合质心与隔震层刚心的偏心率和结构扭转效应展开讨论,希望有机会能进一步讨论。

图3 墙下隔震橡胶支座

图4 柱下隔震橡胶支座

图5 隔震层黏滞阻尼器
日方1:日建设计的中溝大機先生分享了《池袋钻石门-铁路轨道上空的超高层中间层免震建筑物》,此建筑物总建筑面积约5万平米,建筑高度99.98米,设计周期为2013年9月至2015年2月,施工周期为2015年7月至2019年2月,整个建设周期为5年5个月。由于建筑位于正在使用的铁路上方,建筑分为上下两节,上部为办公空间,下部为容纳火车通过的空间和商铺,隔震层设在此结构的中间部分。上部建筑外立面采用铁路交叉轨道的做法,将结构的交叉支撑直接作为建筑的外立面线条,充分体现了“结构美”。建筑外围创新性地利用空调室外机的冷凝水的蒸发作用散热,降低空调的能耗,符合当下“低碳”的环保理念。为保证施工期间铁路的正常运行,项目采用了逆作业法施工,且基础被铁路打断处于偏心状态。由于此结构支撑裸露在外,其如何进行防腐和防火设计,是否有采用特殊钢材等,希望有机会再进一步讨论。

图6 建筑透视草图和实景图
中方2:由中国建筑设计研究院有限公司孙海林分享了《建筑更新改造的结构设计策略及工程案例分析》,介绍了建筑更新改造的基本原则和结构抗震加固方法。分享了大量工程改造加固案例,并通过实际工程案例印证了通过适当增加减震装置可有效减小结构加固工程量。

图7 改造加固工程加设的连梁阻尼器、屈曲约束支撑、黏滞阻尼器或阻尼墙
日方2:大成建设的阪井由尚先生分享了《大成建设技术中心A栋的抗震加固》,介绍了常规工程通过增加剪力墙或支撑的加固方法,以及此工程采用的增加钢木组合墙加固法。钢木组合墙利用普通钢板受力,利用木材包裹或填充钢板间的格子避免钢板屈曲,以充分利用钢材的强度,钢板与边梁和边柱的连接较容易实现,且可以通过不同的钢板排列方式实现不同的墙面效果,十分有创意。

图8 常规加固方法:增加剪力墙或支撑

图9 增加钢木组合墙加固法
中方3:由同济大学建筑设计研究院(集团)有限公司总工程师丁洁民分享了《西安国际丝路中心大厦结构设计与建造》。建筑高498米,抗震设防烈度8度0.2g,结构体系采用框架-核心筒-混合伸臂桁架,采用了黏滞阻尼减震技术,单位面积质量为1.9t/㎡。其中核心筒外围在办公区3高度范围内采用斜墙,将核心筒平缓地逐渐减小,避免应力集中。而后研究了刚性伸臂桁架和阻尼伸臂桁架不同组合方式对结构的影响,根据分析结果,此工程具有4个避难区,当采用2道刚性伸臂+2道阻尼伸臂(上部区域)方案为最优方案,最终在设计中予以采纳。

图10 建筑剖面、平面和高宽比

图11 标准层平面示意图

图12 阻尼伸臂示意图

图13 型钢混凝土柱配筋构造图

图14 型钢混凝土剪力墙配筋构造图
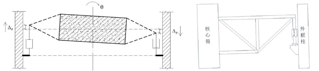
日方3:由株式会社大林组的富田和磨先生分享了《超高层建筑中高效制震机构的事例介绍》。该工程地上设有两道结构缝,将建筑分为三栋建筑,分别为住宅栋(地上6层,高39米)、剧场栋(地上7层,高45米)、高层栋(地上51层,高250米),结构体系均采用框架结构+减震耗能装置。着重介绍了四种减震耗能装置,有3种正在申请专利。其中第4种“连栋制震”的减震装置设置于高层栋与另外两栋的结构缝间,有效降低了裙楼的地震作用,并通过在对面相应的位置布置减震装置以控制住宅栋和剧场栋的扭转,独具匠心。
由于疫情影响,会议采取了线上形式,且时长较短,对部分问题未能进行进一步讨论,让人意犹未尽。此次技术交流会,开拓了设计人员的视野,加深了对建筑隔震、减震技术和加固改造技术的认识,体会到解决工程问题不止需要传统经验,更需要一定的技术创新,才能满足当下和未来社会的需求。大家纷纷表示,此次研讨会“干货”满满、收获颇丰,切身感受到了学术的碰撞与魅力。公司要以此次会议为重要契机,由总工办牵头组织专业培训,邀请技术专家、专业人员开展特色项目交流,通过互鉴互学,加强学术交流,深化学术研讨,不断提升设计研究水平,为海南自贸港建设提供智力支撑。
上一条:没有了